分享到
一键分享
QQ空间
新浪微博
百度云收藏
人人网
腾讯微博
百度相册
开心网
腾讯朋友
百度贴吧
豆瓣网
搜狐微博
百度新首页
QQ好友
和讯微博
更多...
百度分享
咨询电话
1 3 4 7 6 1 0 8 9 1 5
网站首页
关于我们
公司简介
人才招聘
企业文化
新闻动态
公司新闻
行业新闻
产品展示
研华产品
爱游戏最新官网_爱游戏(中国)
爱游戏最新官网_爱游戏(中国)
组态软件
工业服务器
UPS电源
激光专用工控机
解决方案
OEM服务
OEM流程
OEM内容
工程案例
激光设备集成应用
视频会议系统
爱游戏最新官网_爱游戏(中国)
栏目分类
爱游戏最新官网_爱游戏(中国)
1 3 4 7 6 1 0 8 9 1 5
公司:
爱游戏最新官网_爱游戏(中国)
邮箱:
273931066@qq.com
地址:
武汉东湖新技术开发区关东科技工业园华光大道18号 办公地址:武汉市洪山区高新大道沃德中心12B13
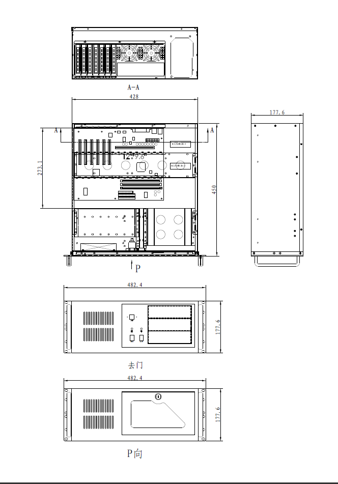
激光专用工控机
首页
>
产品展示
>
激光专用工控机
>
4U 19寸 工业灰
作者: 时间:2020-04-03 浏览量:6062
上一篇:
4U 19寸 黑色
下一篇:
EIPC-3401
万象城平台
|
江南买球
|
米兰官方注册
|
米兰平台
|
OD在线平台
|
开云电子
|
开云网页版
|
OD平台
|
开云集团官网首页_开云(中国)
|